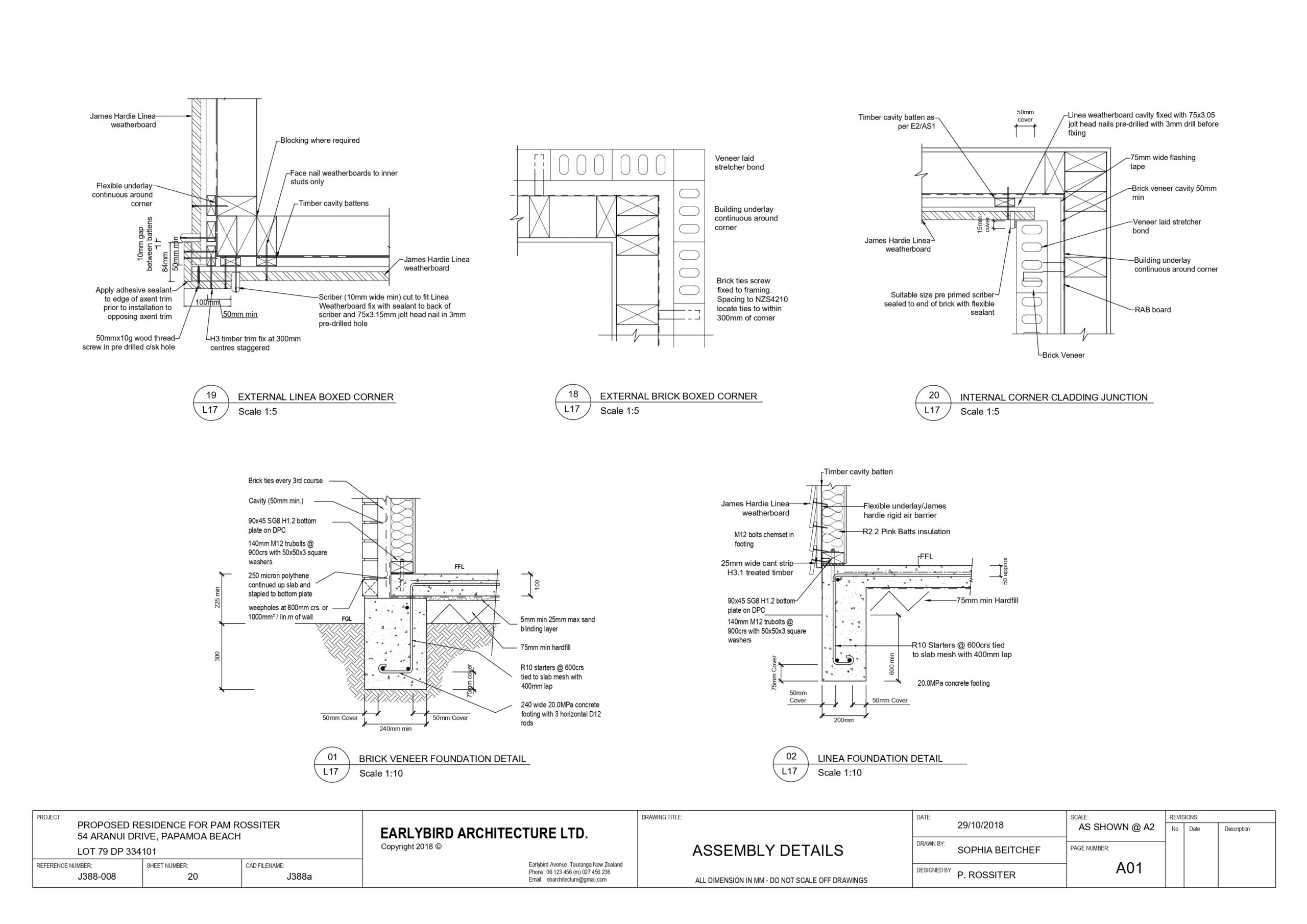
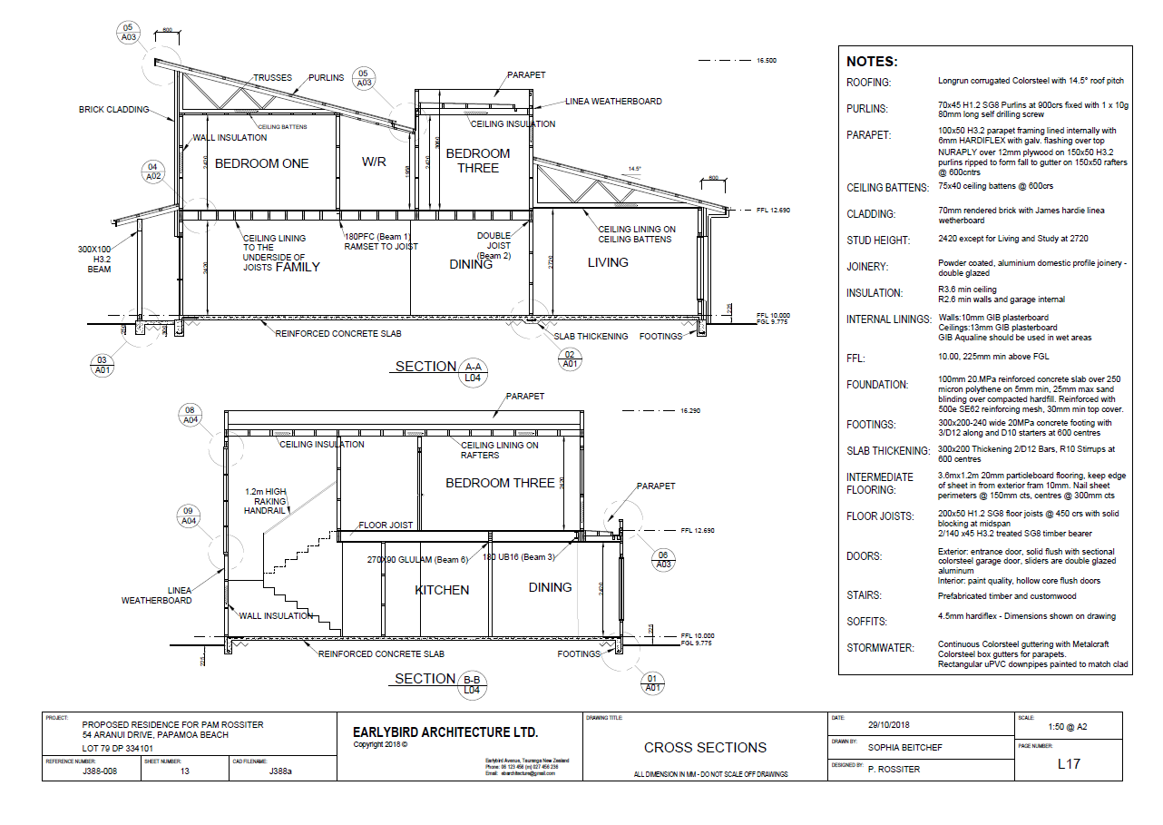
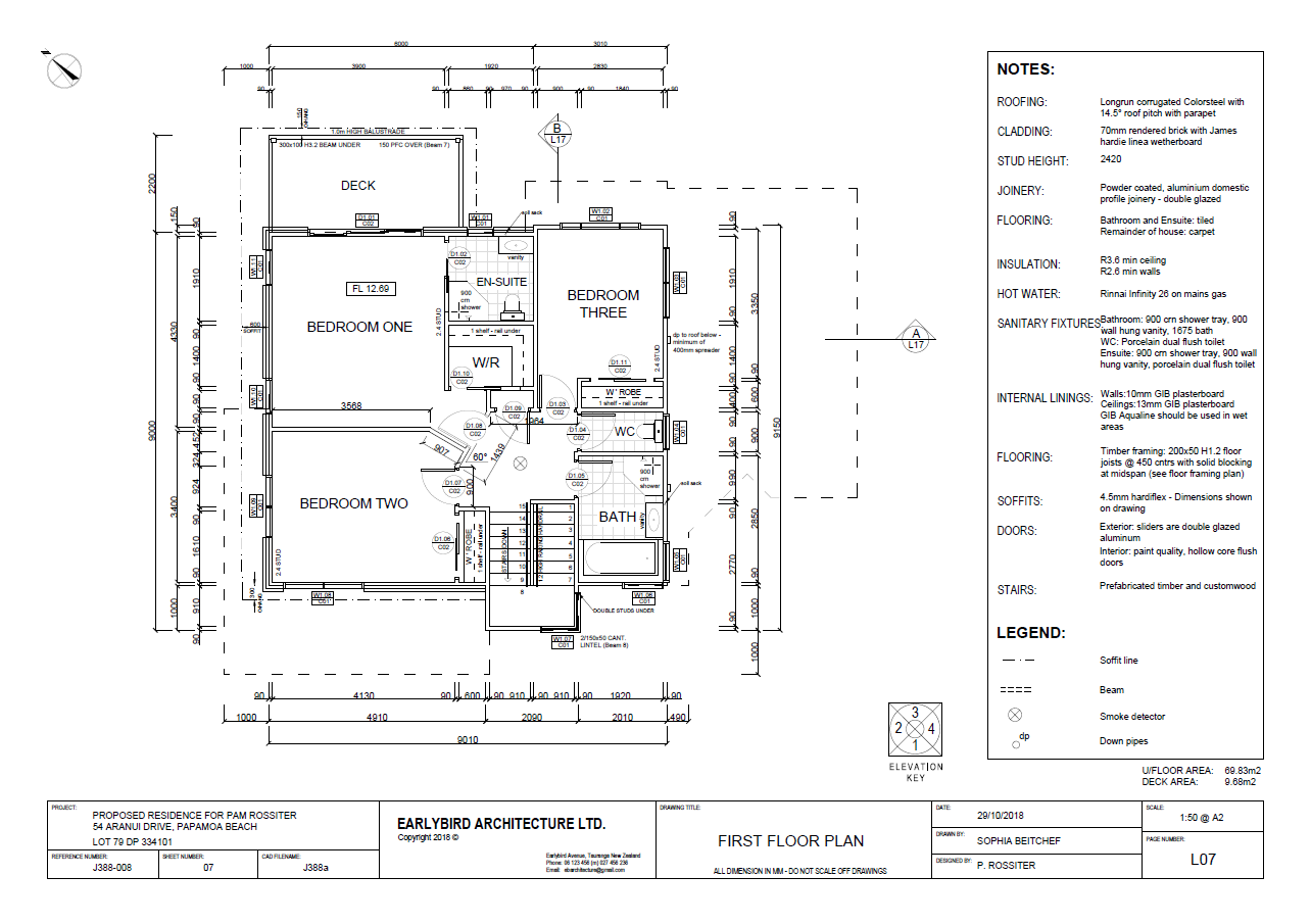
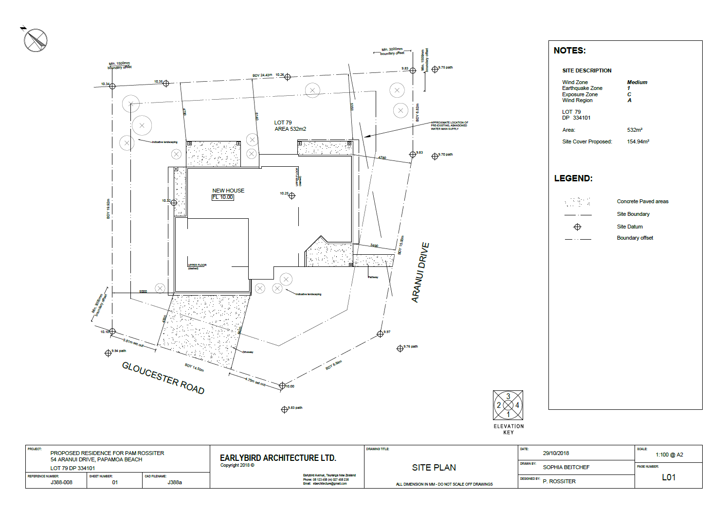
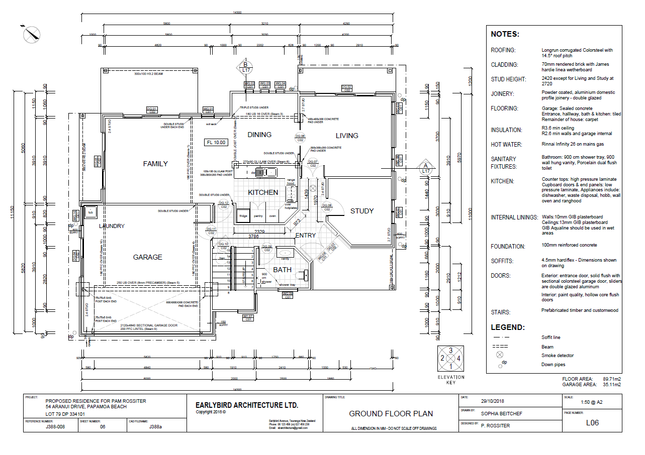
RESIDENTIAL DESIGN

A selected sample of a residential drawing design set for a 2 story dwelling in Papamoa Beach.  Drawings are prepared for the provision of building consent in accordance with NZBC compliance documents. The information has been integrated and co-ordinated from specialist consultants.